890 000 zł
pokoi:
4
Opis nieruchomości
W ofercie sprzedaży nowoczesny dom w zabudowie bliźniaczej położony w Tajęcinie o powierzchni ok 162 m2, na działce ok 3 ar, z doskonałym dojazdem do Jasionki i Strefy ekonomicznej. Komfortowo rozplanowany układ pomieszczeń, cicha okolica w sąsiedztwie lasu i wysoki standard wykonania zadowolą najbardziej wymagających.
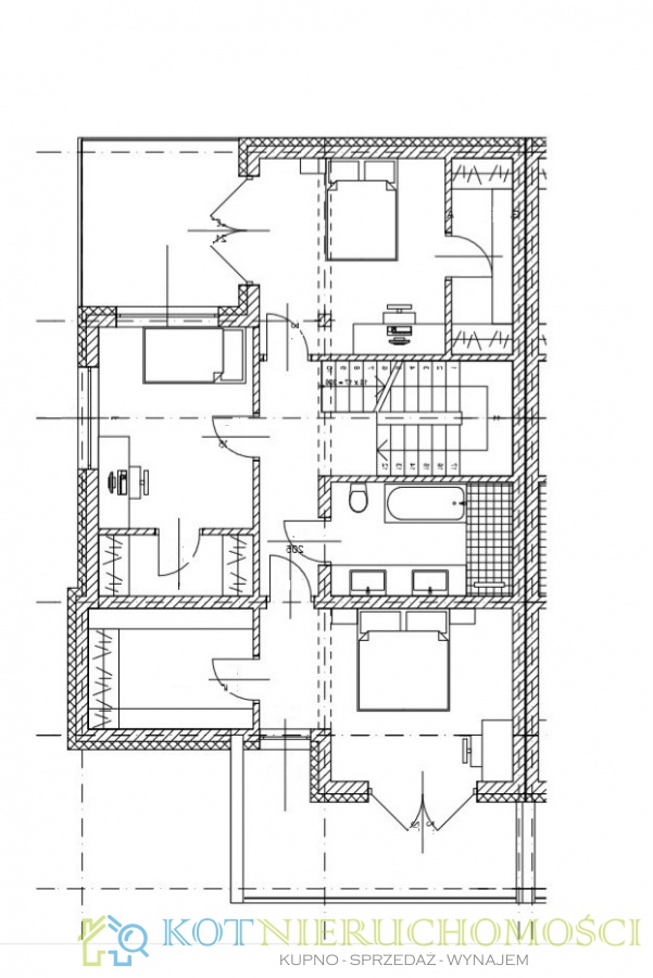
Inwestycja realizowana jest w technologii tradycyjnej. Parter pełni funkcję strefy dziennej, jej otwarty układ sprawia, że wnętrze optycznie zyskuje na przestronności. W jasnej kuchni z narożnym oknem powstała wygodna przestrzeń do pracy. Na parterze uwzględniono także toaletę oraz wiatrołap i pomieszczenie gospodarcze z pralnią, które zapewni mieszkańcom szybki dostęp do jednostanowiskowego garażu. Zaprojektowana na poddaszu strefa nocna obejmuje 3 wygodne sypialnie, każda z własną garderobą. Dodatkowo dwie z nich mają dostęp do tarasu a trzecia jest z wyjściem na balkon. Przestronna łazienka zmieści wannę, prysznic i dwie umywalki. Niewątpliwym atutem tej nieruchomości są kondygnacje pełnej wysokości - bez skosów.
ROZKŁAD POMIESZCZEŃ:
PARTER
- Garaż: 17,87 m2
- Wiatrołap: 5,37 m2
- Kotłownia: 7,54 m2
- Toaleta: 2,37 m2
- Kuchnia z jadalnią: 7,78 m2+ 23,23 m2
- Salon: 19,24 m2
PODDASZE:
- Łazienka: 8,79 m2
- Korytarz: 5,68 m2
- Klatka schodowa: 7,64 m2
- Sypialnia 1 z garderobą + taras : 14,41 m2 + 4,79 m2, taras: 10,89 m2
- Sypialnia 2 z garderobą: 11,79 m2 + 3,73 m2
- Sypialnia 3 z garderobą + balkon: 15,76 m2 + 7,41 m2 + balkon 12,29 m2
Specyfikacja wykończenia stanu deweloperskiego:
-Fundamenty lane betonowe - beton B20, zbrojone stalą zbrojeniową fi 12
-Podłoże stanu Piasek, Wylewka betonowa
-Parter – warstwy podłogowe
-Folia przeciwwilgociowa , Styropian, Wodne ogrzewanie podłogowego, Szlichta cementowa
-Konstrukcja budynku
-Ściany zewnętrzne fundamentowe 18 cm z pustaka piano-betonowego
-Ściany wewnętrzne konstrukcyjne/ działowe,
-Strop:nad parterem, nad 1 piętrem, stropy lane, betonowe ze zbrojeniem prętami żebrowanymi
-Dach: konstrukcja drewniana krokwiowa pokryta blachodachówką
-Odwodnienie połach dachu
-Drzwi zewnętrzne
-Brama garażowa
-Okna i drzwi tarasowe
-Okna parter - kuchnia
-Okna kuchnia - jadalnia
-Okno tarasowe w sypialni
-Parapety zewnętrzne
-Parapety wewnętrzne
-Schody wewnętrzne
-Kominy wentylacyjne prefabrykowane betonowe
-Elementy wykończenia wewnętrznego
-Elementy wykończenia zewnętrznego Wykończenia tarasów, Elewacja
-Zagospodarowanie terenu: Podjazdy, Ogrodzenie częściowe, Brama wjazdowa:
-Instalacja elektryczna
-Instalacja gazowa
-Instalacja grzewcza
-Instalacja odgromowa
-Instalacje sanitarne (wodne i kanalizacyjne)
Cena - 890 000 zł - stan deweloperski
Możliwość doprowadzenia do wyższego stanu zaawansowania - szczegóły w biurze.
Zapraszam do obejrzenia miejsca inwestycji - zadzwoń i umów się już dziś!
Opiekun oferty - Dorota Kot
Tel. 603 518 330
Więcej podobnych ofert znajdziesz w naszej wyszukiwarce na stronie Kot Nieruchomości
Biuro sprzedaży:
Kot Nieruchomości
ul. Solińska 3/3
35-505 Rzeszów
Tel. 603 518 330
Na życzenie klienta pomagamy w załatwieniu formalności związanych z zakupem, np.:
- kredyt hipoteczny
- notariusz
- rzeczoznawca
- ubezpieczenie
- porady fachowców z branży budowlanej
- kupując z naszym udziałem otrzymasz rabat na materiały budowlane
Treść niniejszego ogłoszenia nie stanowi oferty handlowej w rozumieniu Kodeksu Cywilnego. Treść ma charakter informacyjny i zalecamy ich osobistą weryfikację. Kontaktując się z biurem Klient wyraża zgodę na przetwarzanie danych osobowych zgodnie z przepisami ustawy z dnia 29 sierpnia 1997 roku o ochronie danych osobowych / Dz.U.Nr. 133 poz. 883/. Klientowi przysługuje prawo do wglądu do swoich danych osobowych i ich aktualizacji.
Szczegóły oferty
Wyszukaj podobne oferty
Lokalizacja na mapie...
Ofertę obsługuje...

Zapytaj o szczegóły...
Aktualnie w notesie nie znajduje się żadna oferta.